Project Gallery

To read about our customer review, click here

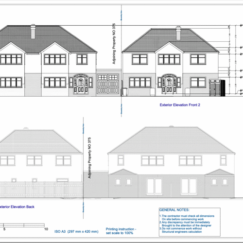
Kingston, Norbiton (Planning)

(Planning)

To read about our customer review, {click here=https://www.yell.com/biz/k-b-architectural-service-drafts-man-kingston-upon-thames-9212773/}

Description of Development:
Erection of single storey rear extension (6.00m in depth, maximum height of 4.00m and eaves height of 3.00m). Prior Approval is Granted.
Erection of first floor rear extension. Prior Approval is Granted.
Proposed erection of a hip-to-gable roof extension, rear dormer roof extension and roof light to front front roof slope to facilitate loft conversion. Prior Approval is Granted.

Full Info


Former Public Convenience Malden Road Worcester Park (Planning)

Demolition of existing former public convenience and erection of two bedroom detached house, with associated amenity space, cycle storage and refuse/recycling facilities

To read about our customer review, {click here=https://www.yell.com/biz/k-b-architectural-service-drafts-man-kingston-upon-thames-9212773/}

Description of Development: New builds,
Application no: 22/00096/FUL
Demolition of existing former public convenience and erection of two bedroom detached house, with associated amenity space, cycle storage and refuse/recycling facilities

Full Info


Kings Yard Kings Road Long Ditton Surbiton Surrey (Planning)

Demolition of existing former public convenience and erection of two bedroom detached house, with associated amenity space, cycle storage and refuse/recycling facilities

To read about our customer review, {click here=https://www.yell.com/biz/k-b-architectural-service-drafts-man-kingston-upon-thames-9212773/}

Description of Development: New builds, Application no: 22/00096/FUL
Demolition of existing former public convenience and erection of two bedroom detached house, with associated amenity space, cycle storage and refuse/recycling facilities

Full Info


Poplar Grove New Malden (Planning)

To read about our customer review, {click here=https://www.yell.com/biz/k-b-architectural-service-drafts-man-kingston-upon-thames-9212773/}

Description of Development: Application no: 24/00935/HOU. Demolition of single storey rear extension storage and erection of part single storey/part two storey rear extension. Erection of hip to gable and rear dormer roof extension with Juliet balcony and installation of 3nos. front rooflights to facilitate loft conversion. Changes to side fenestrations.

Full Info


Dell Walk New Malden (Planning)

Erection of rear dormer roof extension with 2nos juliet balconies. Alteration to the roof pitch and ridge height with installation of 1no front rooflight.

To read about our customer review, {click here=https://www.yell.com/biz/k-b-architectural-service-drafts-man-kingston-upon-thames-9212773/}

Description of Development: Application no: 24/00860/HOU
Erection of rear dormer roof extension with 2nos juliet balconies. Alteration to the roof pitch and ridge height with installation of 1no front rooflight.

Full Info


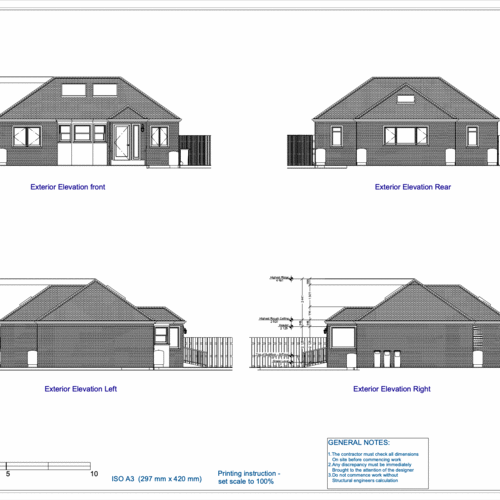
Hillcroft Crescent, Wembley, Brent (Planning)

To read about our customer review, {click here=https://www.yell.com/biz/k-b-architectural-service-drafts-man-kingston-upon-thames-9212773/}

Description of Development:
Application no: 22/2636
Proposed single-storey rear extension with steps into rear garden of bungalow

Full Info


Manor Park Road, London, Brent (Planning)

First and second floor rear extensions and erection of third floor to create a self-contained flat

To read about our customer review, {click here=https://www.yell.com/biz/k-b-architectural-service-drafts-man-kingston-upon-thames-9212773/}

Description of Development:
Application No: 23/1375
First and second floor rear extensions and erection of third floor to create a self-contained flat

Full Info


Blakenham Road, London, Wandsworth, Tooting (Planning)

To read about our customer review, {click here=https://www.yell.com/biz/k-b-architectural-service-drafts-man-kingston-upon-thames-9212773/}

Description of Development: Application no 2023/3304
Alterations including excavation to create basement with a lightwell within the front garden and installation of windows and relocating the entry door.

Full Info


Chapel Road, Beighton, Norwich, Norfolk (Planning)

To read about our customer review, {click here=https://www.yell.com/biz/k-b-architectural-service-drafts-man-kingston-upon-thames-9212773/}

Description of Development: 20160853
Two Storey Side and Rear Extension, Single Storey Rear Extension,
Loft Conversions & Front Porch Extension.
Decision Full Approval 18-07-2016 by
https://secure.broadland.gov.uk/Northgate/PlanningExplorer/

Full Info


Borehamwood, Hertfordshire (Planning)

Borehamwood, Hertfordshire

To read about our customer review, {click here=https://www.yell.com/biz/k-b-architectural-service-drafts-man-kingston-upon-thames-9212773/}

Description of Development:
Erection of two storey side extension and part single, part two storey rear extension.

"In pursuance of its powers under the above mentioned Act and the Orders and Regulations for the time being in force there under, the Council hereby GRANTS Planning Permission for the development proposed by you in your application received by us on 01 February 0000 and received with sufficient particulars on 01 February 0000 and shown on the plan(s) accompanying such application."

Full Info