Project Gallery

Dell Walk New Malden (Planning)

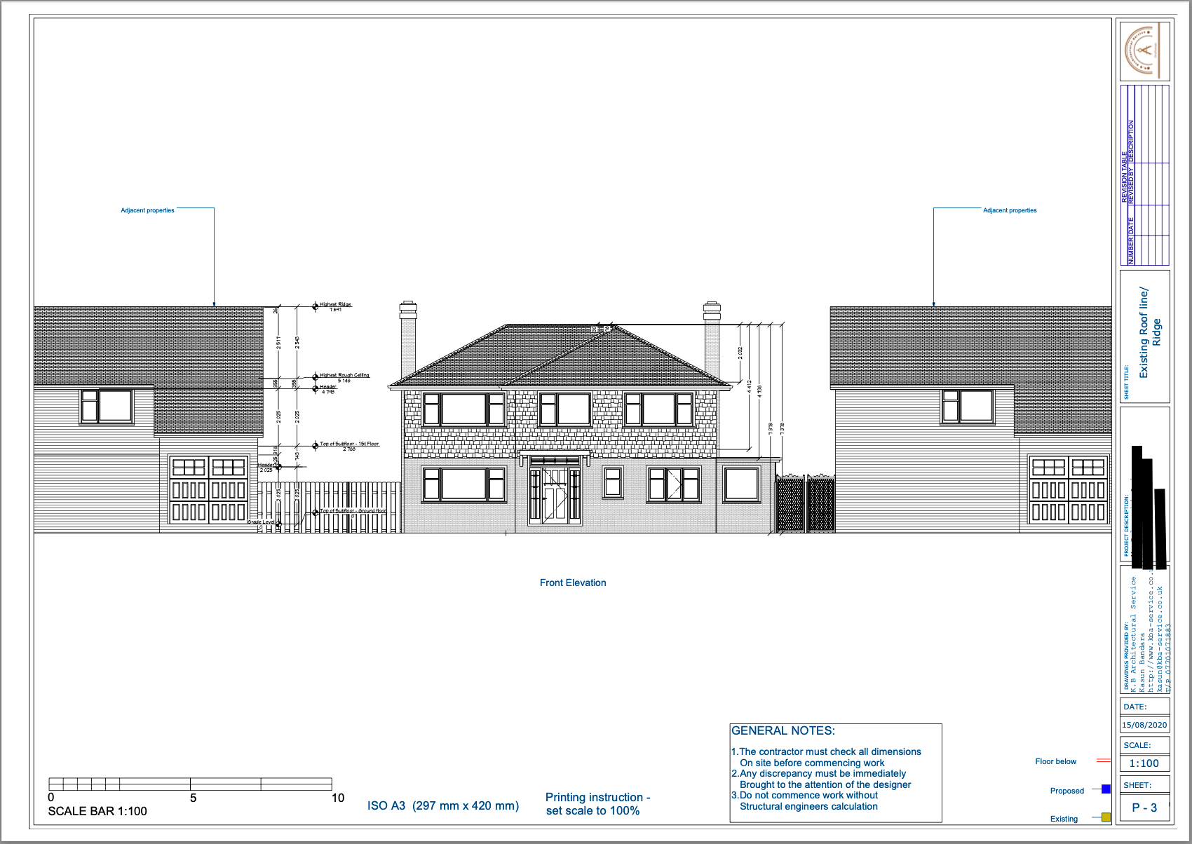
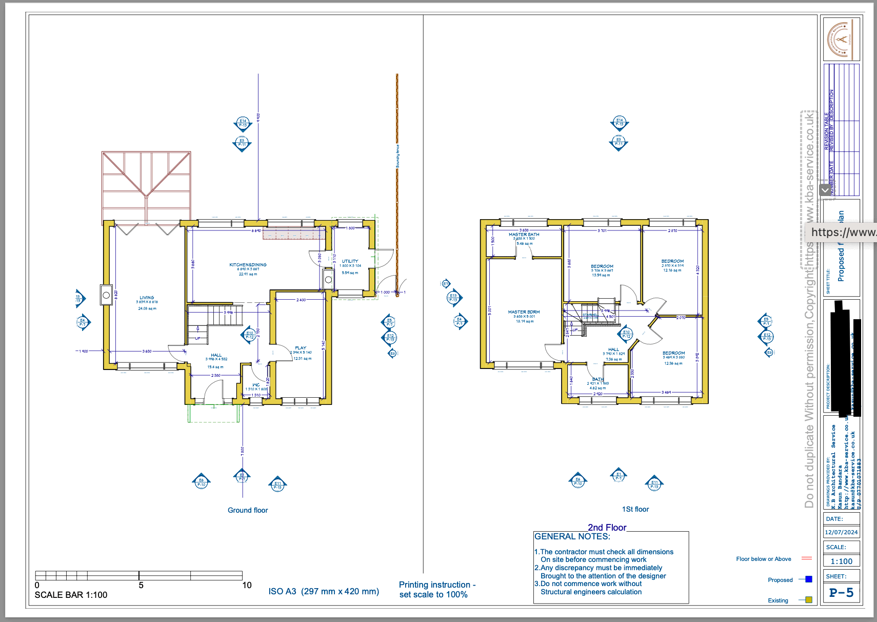
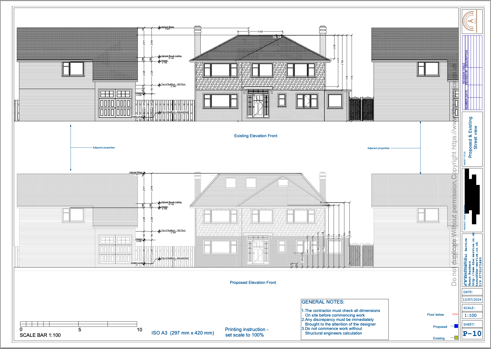
Erection of rear dormer roof extension with 2nos juliet balconies. Alteration to the roof pitch and ridge height with installation of 1no front rooflight.

To read about our customer review, {click here=https://www.yell.com/biz/k-b-architectural-service-drafts-man-kingston-upon-thames-9212773/}

Description of Development: Application no: 24/00860/HOU
Erection of rear dormer roof extension with 2nos juliet balconies. Alteration to the roof pitch and ridge height with installation of 1no front rooflight.