Project Gallery

Manor Park Road, London, Brent (Planning)

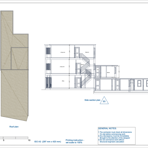
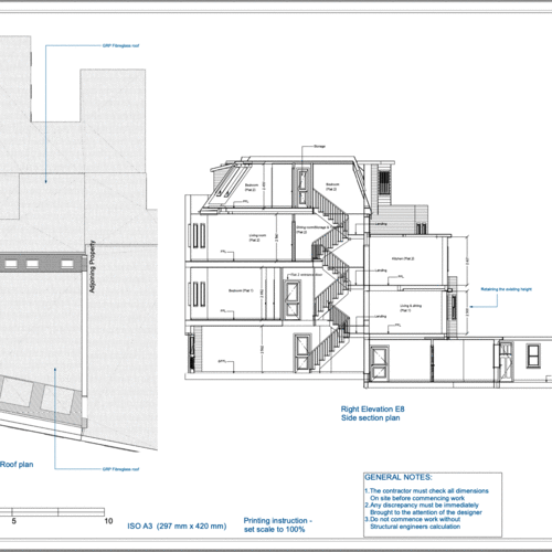
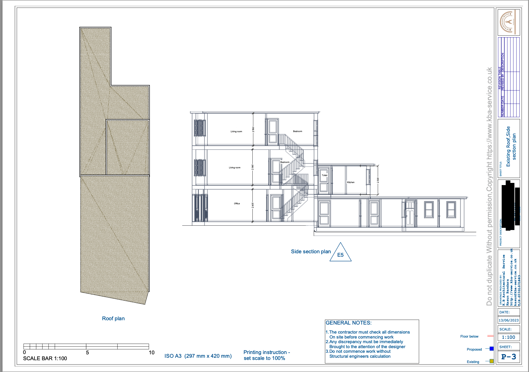
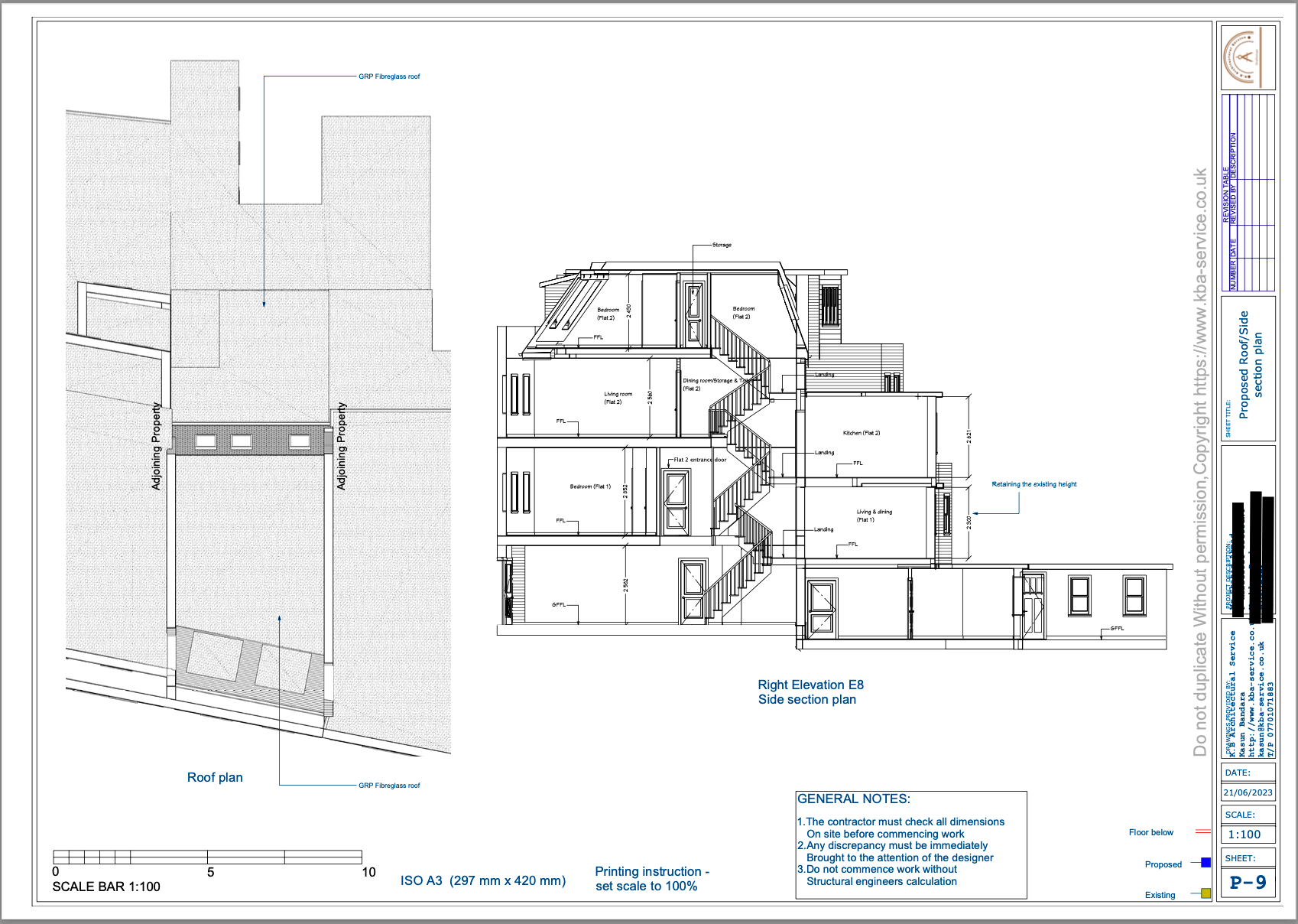
First and second floor rear extensions and erection of third floor to create a self-contained flat

To read about our customer review, {click here=https://www.yell.com/biz/k-b-architectural-service-drafts-man-kingston-upon-thames-9212773/}

Description of Development:
Application No: 23/1375
First and second floor rear extensions and erection of third floor to create a self-contained flat